 » Как правильно своими руками
 » Как правильно своими руками
				  
				  Правильный свинарник своими руками
Построить свинарник своими руками может каждый 2
Количество просмотров: 3134
Если вы читаете эту статью, значит, вы намерены построить свинарник своими руками. Конечно, многие могут сказать, что сейчас не очень выгодно держать свиней с учетом постоянного роста цен на корма. Для моих родителей свинки #8212; своеобразная копилка, которую можно #171;разбить#187; через 6-12 месяцев и взять разом все вложенное в хрюшек. Поэтому, если вы все-таки решили и есть желание разводить свиней, хотите чтобы ваши хрюшки росли здоровыми и не болели, нужно грамотно построить домик, в котором они будут обитать.
Сразу предупреждаю, что не стоит заводить свиней в первом попавшемся сарае, так как он, скорее всего, не адаптирован под них. В таком сарае поросята будут постоянно болеть, а если животным по какой-либо причине не комфортно в их жилище, то и вам не следует ожидать каких-либо положительных результатов от свиноводства.
Важно! Свинарник #8212; не летний курятник. при его строительстве стоит учитывать индивидуальные особенности животных и климат именно вашего региона. Свинарник должен быть просторным и светлым, хорошо проветриваться. Наверное, не стоит объяснять, что он время от времени будет нуждаться в уборке и дезинфекции.
Стены для хрюшкиного домика
Для строительства стен свинарника можно использовать любой доступный материал: кирпич, дерево, шлакоблок, керамзитоблок, пено- или газобетон и т.д. В общем, выбирать вам, поскольку все зависит от финансовых возможностей и умения обращаться с тем или иным материалом. Мои родители, например, использовали шлакоблок (он относительно дешевый и крепкий, см. фото выше) #8212; и не че, и стоит, хрюшкам нравится. При желании, если у вас суровые зимы, сарай для свиней можно утеплить пенопластом, гипсокартоном, разными утеплителями. Лично мы не утеплялись.
Крыша для свинарника
Материал для крыши вы также можете подбирать по своим возможностям, как вы видите мы использовали шифер. Но вы можете брать рубероид, черепицу, толь, глиносолому и глинотростник. Чердак мы делали, у нас просто положены балки, а к ним привинчен шифер. Чтобы получилась крыша с наклоном, мы выложили на передней стенке на ряд-два больше шлакоблока, чем на задней.
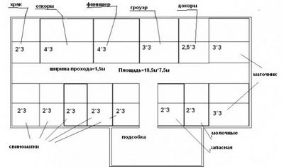
Если ваш будущий свинарник предполагает совместное содержание поросят и свиней для откорма, то стройте прямоугольные групповые стойла. Советую располагать их в два или четыре ряда с двумя проходами между ними. Персональное стойло для свиноматок должно быть размером 2 на 2,5 метра, а для откормочного поголовья – 2 на 2 метра.
Строим окна в свинарнике
Высота окон в свинарнике должна быть не ниже 1,5 метров от полового покрытия. Рекомендую делать двойное остекление тех окон, в местах расположений которых зимой может быть до -25 градусов. Не забудьте оборудовать половину всех имеющихся в свинарнике окон створками для проветривания!
Пол, по которому свинка ходила
Пол в свинарнике – это залог здоровых и крепких поросят! Поэтому, строя свинарник своими руками, вы должны учесть, что он должен оправдывать целый ряд возложенных на него функций: выдерживать воздействие продуктов выделения животных (фекалий), дезинфицирующих средств во время уборки и сточных вод. Кроме этого, иметь хорошую теплопроводность и не скользить! Для строительства свинарника в домашних условиях обычно используют деревянный пол. Но не спешите этого делать! Из школьного курса биологии мы помним, что второе призвание свиней после их «свинячьего» образа жизни – это постоянное рытье. Свиньи всегда и везде роют. Деревянный пол для них – не более чем очередной повод «почесать» свои пятачки. Кроме этого, деревянные полы постоянно пропитываются мочой животных, что делает их намного мягче, а значит, и уязвимее для рытья и разрыва… Мало того, что деревянный пол довольно быстро начинает гнить, так его еще и толком не продезинфицируешь!
Что же делать? Казалось бы, самый удобный вариант – залить пол бетоном. Но не так все просто! Бетонный пол – значит холодный пол, свиньи же любят тепло. Да и копыта животных довольно быстро стираются о такой пол. Предлагаю использовать метод комбинирования: во всем свинарнике залить бетонный пол, а в месте отдыха свиней положить деревянный настил или щит из досок, сделав на нем подстилку, например, из соломы. Такое решение позволяет без лишних проблем мыть и дезинфицировать как сам пол, так и деревянный настил, а понадобится – то и починить его. При укладке бетонного пола, не забудьте сделать 5-процентный уклон в бок для стока животных экскрементов. Кроме того, пол должен быть на 5 сантиметров выше уровня проходов.
В последнее время свое распространение в укладке полов для свинарника получил кирпич. И действительно, построенный свинарник с кирпичным полом будет, во-первых, теплее бетонного, во-вторых, больше других подходит для эксплуатации на свиноводческих фермах. Наряду с кирпичными полами, кладут известково-керамзитовые, щелевые, монолитные и другие полы. Их недостаток для свиновода-любителя в том, что для своего (домашнего) хозяйства это довольно затратная в финансовом плане идея. Да и строительство. скажем, железобетонных щелевых полов с решетками, произведенными из бетона М400 – это трудоемкое занятие и, скорее всего, не обойдется без профессиональной помощи.
Температура в доме поросенка
Помните, свиньи – теплолюбивые животные. Они очень чувствительны к сквознякам и перепадам температуры. Поэтому поддерживайте оптимальную температуру в свинарнике: для поросят это 18-22 градусов, а для взрослых особей – 13-19 градусов по Цельсию. Если температура будет постоянно варьироваться, то это приведет к простудным заболеваниям и к излишним растратам корма. Кстати, для только что родившихся поросят в станках можно сделать обогрев пола площадью около 150 см2. В этом вам помогут тепловые пушки или обогреватели направленного действия. Температура обогрева не должна превышать 30 градусов по Цельсию.
Как построить свинарник с правильной вентиляцией помещения
Летом свинарник следует проветривать, просто открыв окна и двери. Зимой же можно использовать простейшую вентиляционную вытяжку. Выведите гофру или другую металлическую трубу наружу через окно или крышу. Чтобы обеспечить тягу, у основания трубы в свинарнике установите любой нагревательный прибор. Нагретый воздух и образует тягу из свинарника на улицу.
В загоне для взрослых животных относительная влажность воздуха должна составлять не более 75%, для поросят – не более 70%.
Не забывайте и о санитарных нормах! Если вы не хотите постоянно вдыхать «ароматы» своих хрюшек, то стройте свинарник на расстоянии 15 метров от своего дома в попутном направлении с постоянным ветром.
Я уверена, у вас получится построить свинарник своими руками и вы мне обязательно расскажите о своих достижениях. Еще один важный момент, для строительства свинарника вам понадобятся строительные материалы, чтобы долго не бегать и не искать, где купить качественный материал и, главное, выгодно, идите сразу на торговую площадку HotOrg.com.ua. Желаю вам успехов!
Вам понравилась статья? Расскажите друзьям о ней, для Вас это мелочь, а нам чертовски приятно.
А чтобы не пропустить новые статьи, новости и полезную информацию, вам нужно ПОДПИСАТЬСЯ НА RSS-ленту
Свинарник своими руками

Существуют определенные нормы, согласно которым должны содержаться животные. Количество свиней и цели их содержания влияют на площадь станка выделяемого под каждого из них.

Например, свинарник на 2 головы (для хряка и свиноматки) должен включать и отдельный блок для ухода за поросятами.

Поэтому потребуется выделить порядка 10 квадратных метров для станка свиноматки и малышей, отдельный станок на 6 квадратных метров для поросят. А еще заготовить станок на 8 квадратных метров для хряка.



При составлении чертежей свинарника нужно учитывать глубину станков от 2,5 до 3 метров. Ее будет достаточно для грамотного содержания животных. При небольшом количестве голов рекомендуется делать однорядный сарай с двумя проходами. А разрабатывая план для свинарника на 10 голов, лучшим решением станет строительство двухрядного строения с тремя проходами. Ширина коридоров должна составлять не менее 2 метров.
Пошаговая инструкция по строительству свинарника

Под любой свинарник нужно заготавливать монолитный фундамент. Под ним должна обязательно находиться песчаная подушка, гидроизоляция из рубероида.

При выборе места под размещение блока нужно учитывать ровность участка и отсутствие подземных вод: повышение влажности в постройке недопустимо.

После заливки и выстаивания фундамента можно приступать к непосредственному возведению стен и крыши. Проводятся работы по такой пошаговой инструкции:
- Между цоколем и стенами укладывается гидроизоляционный слой.
- Возводятся стены (лучше использовать в работе кирпич) с учетом расположения окон вдоль рядов, дверей.
- Заготавливается перекрытие потолка из дерева./li
- Проводится строительство крыши и ее покрытие кровельным материалом./li
- Устанавливаются окна и двери./li
- Стены утепляются снаружи (например, пеноплексом), выполняется внешняя отделка./li
- Закрываются фронтоны, перекрытие между основным блоком и чердаком утепляется. Изнутри перекрытие обшивается доской./li




Описанная инструкция рассказывает, как сделать свинарник с минимальными затратами. В качестве кровельного материала принято использовать шифер. Но исполнителю стоит помнить, что от хорошего качества укладки покрытия зависит сохранность тепла и оптимальных условий содержания свиней.
Создание качественной вентиляции
Чтобы понять, как построить свинарник с качественной вентиляцией, нужно учесть размеры возведения. Для небольших помещений будет достаточно пары больших вентиляционных решеток в конце строения и одной вытяжной шахты. Для больших помещений рекомендуется увеличить число вентиляционных решеток и добавить пару вытяжных шахт.
Внутреннее обустройство
Во время строительства свинарника своими руками нужно позаботиться об уклоне пола в сторону канала, через который будет отводиться навоз и моча животных. Поэтому нужно сразу позаботиться о заливке поверхности с учетом расположения сточных траншей. Они должны находиться вдоль станков со стороны стен постройки (не в центральном проходе).


Бетонный пол с каналами - лучшее решение для свинарника ввиду простоты чистки, долговечности. Перед заливкой поверхности стоит просмотреть прилагаемые фото и видео материалы для корректного выполнения задачи. Использовать дерево крайне не рекомендуется: оно быстро прогниет, и будет постоянно повреждаться самими животными. После заготовки пола можно приступать к строительству перегородок. Станки могут включать разделители из кирпича или металлических решеток.



Внутрь каждого станка устанавливается кормушка (с противоположной от навозовыводящего канала стороны). Для создания благоприятных условий по содержанию свиней рекомендуется дополнить блоки деревянным настилом и соломой, опилками.
Видео строительства свинарника своими руками
Желание завести поросёнка, а то и нескольких, появляется у многих. Однако не у всех есть для этого возможности. Жителям частных участков проще в этом деле – всегда можно сделать свинарник своими руками. А как это осуществить, смотрите дальше.
Домик поросёнка – каким он должен быть?
Хотя свиней принято изображать неряшливыми и грязными, животные любят просторные и светлые помещения. Обязательно нужно следить за чистотой и влажностью. Им по нраву сухие и тёплые апартаменты. Если не будете заботиться о поросятах, то не стоит надеяться на хороший приплод и увеличение в массе. Помимо этого, неподобающие условия для выращивания свиней приводят к их частым заболеваниям, следствие которых – некачественное мясо.
Хотя площадь будущего свинарника и зависит от количества особей, проживающих в нём, но не стоит упускать и другие важные факты. Например, климатические условия района проживания. Сложно поверить, но там, где царят холода, хозяева проводят в помещении отопление. Вот это забота!
Как построить свинарник – раскладываем всё по полочкам
Перед непосредственным строительством обдумайте всё до мелочей. Планируете ли вы разводить свиней? Хотите ли выращивать их в групповых секциях? Не лучше ли сразу отдать предпочтение индивидуальным станкам?

Опытные фермеры руководствуются следующими правилами:
- хряков содержат либо в индивидуальных секциях, либо не более чем по 5 голов в групповой секции;
- похожая ситуация и со свиноматками: их выращивают отдельно или в коллективной секции (не более 12 особей);
- для молодняка используют групповые секции (около 25 поросят).
Какой материал использовать для постройки?
Здесь вариантов много: подойдёт и кирпич, и камень, и дерево, и глина. При желании используйте шлакоблоки, солома и др. При постройке фундамента советуют использовать несколько слоёв рубероида для лучшей влагоизоляции.
Внутри сооружения лучше оббить стены досками из дерева твёрдых пород (если сам свинарник из кирпича или камня, но не из древесины). Это будет препятствовать порчи помещения самими же свиньями. Чаще всего хозяева отдают предпочтение именно этому тандему – кирпич плюс дерево.
Стоит ли делать проект свинарника?
Если делаете всё сами, а поросят планируете выращивать немного, то это совсем не обязательная процедура. Если же в планах большая свиноферма с сотней голов, может, и есть резон обратиться к специалистам. Они сразу посчитают и площадь сооружения, и спроектируют необходимые коммуникации, и чертёж свинарника составят.
Если хочется всё чертить самому, определитесь с размещением свинарника. Он должен находиться на расстоянии не менее 15 м от жилого дома. А вот где его поставить – на юге или западе, выбирайте сами, руководствуясь преобладающим направлениям ветра. Здесь имеет место запах, сами понимаете.
На этапе проектирования рассчитывается площадь будущего сооружения. Групповые секции должны отвечать существующим нормам. Так, площадь на одну свинью должна составлять не менее 0,9 м2. Стойло для кормления – не менее 4 м2. Персональная секция для свиноматки #8212; 5 м2. Постройка выгульного загона животных не обязательно, но многие хозяева готовы идти на это, если позволяет площадь. При сооружении используют кирпич, бетон. Загон для выгула обязательно строят с навесом. Ведь в знойную жару поросята могут перегреться, а это плохо влияет на их здоровье.
Строительство свинарника по этапам
1. Имея под рукой проект (пусть даже самодельный и далеко не идеальный), выберете место свинарника, учитывая направление ветра и уклон сточных вод.
 2. Примитесь за построение фундамента:
- очистите территорию от мусора, снимите верхний слой;
- выкопайте траншею, засыпьте ее песком и щебнем, после чего обильно полейте водой и утрамбуйте;
- дальше идёт слой гидроизоляции, используйте вышеупомянутый рубероид;
- затем уже знакомые вам этапы сборки металлоконструкции из арматуры, за которой следует опалубка;
- для заливки фундамента используйте цемент высокой прочности.
3. Далее следует строительство стен. Их обязательно утепляют, оббивая струганными досками. Высота свинарника – не меньше 2 м.
 4. Если планируется домашнее разведение животных, которых не больше 12, то каждую секцию оборудуют двумя кормушками. Обязательно следите за количеством корма, важно, чтобы он не заканчивался. Это сделает невозможным стычки особей из-за еды.

 5. Напротив кормушки ставят поилку. Достаточно одной на 12-15 свиней.
 6. Отдельное внимание полам: важна их высокая прочность, устойчивость к воздействию сточных вод и дезинфицирующих средств. Поверхность не должна быть скользкой, но обязателен уклон полов примерно на 5%. Это делается для того, чтобы было легко извлекать навозную жижу из загонов. Дерево – идеальный вариант для полов, ведь бетон слишком холодный и приводит к быстрому стиранию копыт животных, а укладка кирпича трудоёмка и затратна.
 7. Обеспечение вентиляции – следующий этап. Поросята, как и взрослые особи, привередливы к условиям в свинарнике. Хорошая для них температура составляет 16-22 °С, приемлемая – 13-15 °С. Когда свиноматка даёт потомство, то в помещении должно быть жарко (28-30 °С).

Величина влажности – 70-75%. Иногда, чтобы добиться таких показателей, приходится дополнительно обогревать свинарник. Чего не сделаешь для своих подопечных? Поэтому для этого используют обогреватели или лампы большой мощности. Конечно, это влечёт за собой дополнительные немалые затраты. Может, пора задуматься о дополнительном утеплении стен? Также не стоит забывать о вытяжках, #8212; поросятам должен поступать свежий воздух.
 8. Постройте окна и решите проблему вентилирования. Лучше выбирать конструкции с двойным остеклением (особенно тем, у кого сильные холода) и с наличием створок. Их размещают на высоте 1,3-1,6 м от пола.
 9. Двери устанавливайте открывающимися только наружу. Тогда свинкам не придется страдать от сквозняков.

 10. Место для купания – не обязательно для постройки, но если вам уж очень хочется угодить своим свинкам, то дерзайте.
И еще раз о грызунах…
Мыши, крысы – первые, кто захочет освоить новое жилище. Только вот понравится ли истинным хозяевам новые, хоть и мелкие, соседи? С грызунами надо бороться. Не получится с ними жить дружно, ведь они самые настоящие переносчики болезней. В качестве профилактических средств чаще наводите порядок в свинарнике, вовремя убирайте навоз. Когда он чист и не загромождён ненужными предметами, #8212; приятно глянуть. Подтверждением этого является много фото свинарников, за которыми ухаживают настоящие чистюли.
Грызунов стоит выгонять всеми вам известными способами. Внимательно следите за появившимися отверстиями в помещении, вовремя их замазывайте. Ставьте ловушки, но только так, чтобы они не могли навредить поросятам. А если вы еще сомневаетесь, заводить ли этих животных, посмотрите видео свинарников других людей и окончательно сделайте выбор.
Источники: http://selxozinfo.com.ua/postroit-svinarnik-svoimi-rukami/, http://mainavi.ru/dom/sad-i-ogorod/svinarnik-svoimi-rukami/, http://gid-str.ru/kak-sdelat-svinarnik-svoimi-rukami
Комментариев пока нет!
Поделитесь своим мнением
- ввести
- вставить
- заварить
- заполнять
- заряжать
- колоть укол
- крышу
- одеть
- подбирать
- проводить
- разное
- своими руками
- сдать
- собирать
- стелить
- точить
- уложить
- Правильное меню
- Правильный массаж
Как правильно:
Статьи по теме
| Как правильно одеть решетки на динамики | |
| Как установить гофру для вытяжки? Изначально важно подобрать правильно далее... | |
| Как правильно сдать кровь на амг | |
| Антимюллеров гормон (АМГ) Антимюллеров гормон (АМГ) – у женщин далее... | |
| Как правильно подшить шторы своими руками | |
| Как подшить шторы своими руками: обрабатываем нижний далее... | |
Популярные
Правильный станок для проволоки своими руками (6)
Как правильно массаж простаты (6)
Как правильно перемотать динамик своими руками видео (6)
Как правильно одеть шлейку на кролика (5)
Как правильно собирать пазлы 1000 (5)
Как правильно вставить ссылку в список литературы (5)
Наиболее читаемые
| Если наладятся месячные мозг начнет правильно работать | |
| Как вызвать менструацию 24.01.Менструация Если Вы далее... | |
| Как правильно собирать букеты видео | |
| Букет по спирали Цветы – уникальное изобретение природы. далее... | |
| Как правильно перемотать динамик своими руками видео | |
| BMW 3 series Touring 330d Булочка Edition далее... | |
